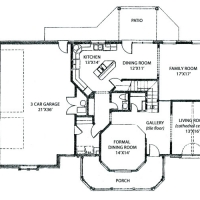
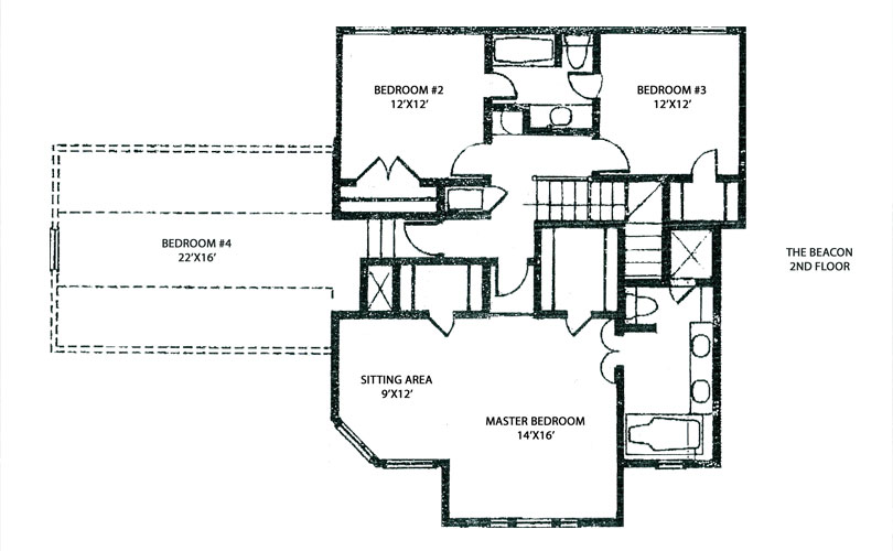
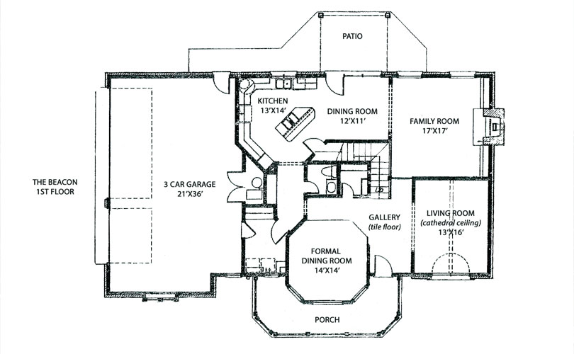
The Beacon
A Distinctive French Country Manor with Seven Gables
- 4 bedrooms – 2 ½ baths
- Master Suite with seating area
- 3,262 square feet with gallery entrance
- Master Bath with his & her vanities
- Open floor plan
- Master Suite walk- in, plus his & her closets
- Custom Kitchen with center island breakfast bar
- Three car garage, patio, 1 plus acre lot
- Sun Room & Family Room
- High efficiency HVAC
- Formal Dining Room & Living Room (optional Study)
- Energy Star Certified for maximum energy savings
Click on image to enlarge, click on right side of picture for manual slide show.



