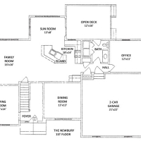
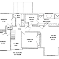
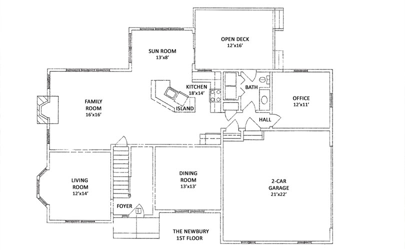
The Newbury
An Elegant Classic American Colonial
- 4 bedrooms – 2 ½ baths
- Master Suite with walk-in closet
- 3,028 square feet w/impressive entrance foyer
- Master Bath with double vanity
- Open floor plan with Sun Room & Family Room
- Two car garage, patio or deck, 1+ acre lot
- Custom Kitchen with center island breakfast bar
- High efficiency HVAC
- Formal Dining Room, Living Room, 1st floor Study
- Energy Star Certified for maximum energy savings
Click on photo to enlarge, click on right side of picture for manual slide show.



